КАРКАСНЫЙ ДОМ 
ОЛДЕН 8.5Х15.5м.

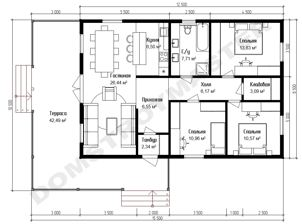
Каркасный дом ОЛДЕН 8.5Х15.5
  • Построй дом своей мечты за 65 дней и живи.
  • Комфортный и уютный каркасный дом под ключ.
  • Поэтапная оплата всех выполненных работ по строительству.

Общая площадь: 148.5 м/кв
Жилая площадь: 94 м/кв

  • Гарантия по договору 5 лет.
  • Online видео наблюдение 24/7.
  • Технический надзор на каждом этапе работ.
Каркасный дом ОЛДЕН 8.5Х15.5
Каркасный дом ОЛДЕН 8.5Х15.5
Каркасный дом ОЛДЕН 8.5Х15.5

15 лет на рынке

Большой опыт работы

Более 1000 домов

Построили за 15 лет

Более 100 проектов

Индивидуальные проекты

15 лет 
на рынке

Работаем
с ипотекой

Более 
1000 домов

Рассрочка
до 3-х мес.

Более 
100 проектов

Работа
с мат. капиталом

Строим 
по  проекту

АКЦИЯ: ФУНДАМЕНТ ДО 100 000 ₽ «ЗА НАШ СЧЁТ»

АКЦИЯ: ФУНДАМЕНТ 
ДО 100 000 ₽ «ЗА НАШ СЧЁТ»

Условия акции действуют при заключении договора на строительство дома до Апреля 2026

Условия акции действуют при заключении договора на строительство дома
до Апреля 2026

КАРКАСНОЕ ИСПОЛНЕНИЕ

СИЛОВОЙ
КАРКАС С КРОВЛЕЙ

ХОЛОДНЫЙ КОНТУР БЕЗ
ВНУТРЕННЕЙ ОТДЕЛКИ

ПОД КЛЮЧ
С ОТДЕЛКОЙ

Пиломатериалы:

Камерной сушки, класс АВ

Фундамент:

Винтовые свай 108х2500мм – Оплачивается отдельно

Обвязка\Половые лаги-Цокольного и Межэтажного перекрытия:

Обвязка из бруса-150х150мм или 200х150мм обработанный Антисептиком. Половые лаги из доски 50х150мм или 50х200мм с шагом 590мм

Наружные стены:

Каркасные (усиленные) из доски 50х150мм или 50х200мм с укосинами и разгрузочными ригелями

Перегородки в доме:

Каркасные, из доски 50х100мм

Стропильная часть:

Из доски 50х150мм или 50х200мм с шагом 590мм, обрешетка разреженная из доски 25х100мм по вент зазору из бруска 40х40мм

Внешняя отделка:

Нет

Утеплитель в наружных стенах:

Нет

Утепление полов:

Нет

Утепление по чердачному перекрытию:

Нет

Пароизоляция внутри дома:

Нет

Внутренняя отделка стен и потолка:

Нет

Дверные блоки межкомнатные:

Нет

Дверные блоки входные:

Нет

Оконные блоки:

Нет

Лестница внутри дома:

Нет

Высота помещения:

1 этаж - 2,7 метра.

Плинтус:

Нет

Гвозди:

Каркас собирается на строительные гвозди, отделочные материалы крепятся на оцинкованные гвозди не в щип

Другое:

Устанавливаются временные ступени для входа в дом

Покрытие кровли:

Металлочерепица 0.45мм, производства Россия под кровлей прокладывается Андутис *АМ*

Параметры кровли:

Цвет: ?, ширина карнизных и фронтонных свесов: 400мм.

Пластиковая водосточная система:

Нет

Металлический снегозадержатель:

Нет

Стоимость каркас 150 мм:

2 262 000 руб.

Стоимость каркас  200 мм::

2 535 000 руб.

Пиломатериалы:

Камерной сушки, класс АВ

Фундамент:

Винтовые свай 108х2500мм – Оплачивается отдельно

Обвязка\Половые лаги-Цокольного и Межэтажного перекрытия:

Обвязка из бруса- 150х150мм или 200х150мм обработанный Антисептиком. Половые лаги и потолок из доски 50х150мм или 50х200мм с шагом 590мм, влагозащита – Андутис *А*, черновой пол из доски 22х100мм

Наружные стены:

Каркасные (усиленные) из доски 50х150мм или 50х200мм с укосинами и разгрузочными ригелями

Перегородки в доме:

Каркасные, из доски 50х100мм

Стропильная часть:

Из доски 50х150мм или 50х200мм с шагом 590мм, обрешетка разреженная из доски 22х100мм по вент зазору из бруска 40х40мм

Внешняя отделка:

Имитация бруса по вент зазору из бруска 20х50мм. ветрозащита – Андутис *А*. Окрашено в 2 слоя на производстве

Утеплитель в наружных стенах:

Нет

Утепление полов:

Нет

Утепление по чердачному перекрытию:

Нет

Пароизоляция внутри дома:

Нет

Внутренняя отделка стен и потолка:

Нет

Дверные блоки межкомнатные:

Нет

Дверные блоки входные:

Металлическая, производства Россия –1 шт.

Оконные блоки:

ПВХ, двухкамерные, поворотно-откидные, согласно проекту, технологические зазоры заполняются монтажной пеной

Лестница внутри дома:

Нет

Высота помещения:

1 этаж - 2,7 метра.

Плинтус:

Нет

Гвозди:

Каркас собирается на строительные гвозди, отделочные материалы крепятся на оцинкованные гвозди не в щип

Другое:

Устанавливаются временные ступени для входа в дом

Покрытие кровли:

Металлочерепица 0.45мм, производства Россия под кровлей прокладывается Андутис *АМ*

Параметры кровли:

Цвет: ?, ширина карнизных и фронтонных свесов: 400мм, подшиваются Евро Вагонкой

Пластиковая водосточная система:

DОCKE с двух сторон

Металлический снегозадержатель:

С двух сторон

Стоимость каркас 150 мм:

3 457 000 руб.

Стоимость каркас 200 мм:

3 732 000 руб.

Пиломатериалы:

Камерной сушки, класс АВ

Фундамент:

Винтовые свай 108х2500мм – Оплачивается отдельно

Обвязка\Половые лаги-Цокольного и Межэтажного перекрытия:

Обвязка из бруса- 150х150мм или 200х150мм обработанный Антисептиком. Половые лаги и потолок из доски 50х150мм или 50х200мм с шагом 590мм, влагозащита – Андутис *А*, черновой пол из доски 22х100мм

Наружные стены:

Каркасные (усиленные) из доски 50х150мм или 50х200мм с укосинами и разгрузочными ригелями

Перегородки в доме:

Каркасные, из доски 50х100мм с утеплением 100мм, обшиваются Евро Вагонкой с двух сторон

Стропильная часть:

Из доски 50х150мм или 50х200мм с шагом 590мм, обрешетка разреженная из доски 25х100мм по вент зазору из бруска 40х40мм

Внешняя отделка:

Имитация бруса по вент зазору из бруска 20х50мм. ветрозащита – Андутис *А*. Окрашено в 2 слоя на производстве

Утеплитель в наружных стенах:

Роквул скандик 150мм или 200мм (плиты)

Утепление полов:

Роквул скандик, 1 этаж – 150мм или 200мм (плиты), межэтажное перекрытие – 150мм или 200мм (плиты)

Утепление по чердачному перекрытию:

Роквул скандик, 150мм или 200мм (плиты).

Пароизоляция внутри дома:

Андутис 'ПК-150/PRO Frame House' с проклейкой скотчем

Внутренняя отделка стен и потолка:

Евро Вагонка

Чистовой пол:

Шпунтованная доска 28мм. или плиты Квик дек дсп влагостойкая

Дверные блоки межкомнатные:

Филенчатые с ручками, без замков.

Дверные блоки входные:

Металлическая, утепленная,производства Россия – 2 шт.

Оконные блоки:

ПВХ, двухкамерные, поворотно-откидные, согласно проекту, технологические зазоры заполняются монтажной пеной

Лестница внутри дома:

Нет

Высота помещения:

1 этаж - 2,7 метра.

Плинтус:

Деревянный

Гвозди:

Каркас собирается на строительные гвозди, отделочные материалы крепятся на оцинкованные гвозди не в щип

Другое:

Устанавливаются временные ступени для входа в дом

Покрытие кровли:

Металлочерепица 0.45мм, производства Россия под кровлей прокладывается Андутис *АМ*

Параметры кровли:

Цвет: ?, ширина карнизных и фронтонных свесов: 400мм, подшиваются Евро Вагонкой

Пластиковая водосточная система:

DОCKE с двух сторон

Металлический снегозадержатель:

С двух сторон

Стоимость каркас 150 мм:

4  995 000 руб.

Стоимость каркас 200 мм:

5 472 000 руб.

НАШИ ПАРТНЕРЫ

ПОКУПАЙТЕ СТРОЙМАТЕРИАЛЫ И ХОЗТОВАРЫ
ВЫГОДНО С МАКСИМАЛЬНОЙ СКИДКОЙ:

СТРОИТЕЛЬСТВО ДОМОВ
ПРОИЗВОДИМ ПО ГОСТУ

Имея большой опыт, мы строим современные и тёплые каркасные дома по всем правилам РФ.

Наши дома построенные по своду правил 31-105-2002 года, которые вам прослужат вам долгие года.

НАШИ ПАРТНЕРЫ:

Покупайте стройматериалы и хозтовары с максимальной скидкой:

Участки с коммуникациями:

ОСТАЛИСЬ ВОПРОСЫ? 

ОСТАВЬТЕ ЗАЯВКУ 
И МЫ СВЯЖЕМСЯ С ВАМИ

ИЛИ ПОЗВОНИТЕ НАМ:

+7 (921) 716 54 31

Каркасные дома в СПБ

Copyright © 2020 - 2026